• Collaborative
  • Selected Work
  • Vestige | Mercantile
  • Contact

VESTIGE | designstudio

NYC + HAMPTONS + VESTIGE | interiors

  • Collaborative
  • Selected Work
  • Vestige | Mercantile
  • Contact

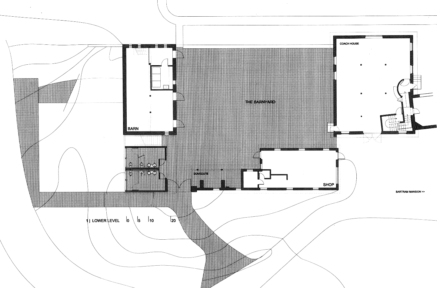
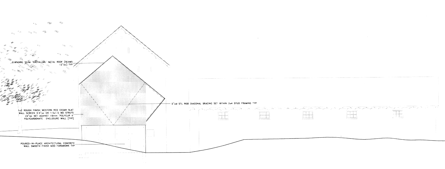
Historic Bartrams' Gardens - DARCH

In the late 90’s and early 2000’s Kevin had the great pleasure of working for and being inspired for an AIA award winning architect of NYC and NoLA, James K. Dart of www.archdart.com. Among Jim’s many talents and accolades as an architect, academic, and scholar, Jim played an immeasurable roll in Kevin’s early architectural development, sensitivity to the client, space, history, scale, context, and delicate subtle innovation that all of Jim’s architectural works bring, not the least of which the Baltimore Museum of Art, and his influences from Kahn, among many others. This project was fully a DARCH project, that Kevin had the great pleasure of learning from and participating in parts of while working at Jim’s Firm. More specific information on this project will be coming soon and also can be found on Jim’s website!

HBG_EDU_04.jpg
HBG_EDU_01.jpg
HBG_EDU_03.jpg
HBG_EDU_07.jpg
HBG_EDU_06.gif
LINE04.gif
LINE07.gif
HBG_EDU_02.gif
PIC03.jpg
LINE03.gif
LINE02.gif
PIC05.jpg
LINE01.gif
SITE-city-planners-office.gif
PCI06.jpg
LINE06.gif

Powered by Squarespace 6